Universidad de Oviedo
Año
2018
Qué hicimos
- Identidad visual
- Diseño de Oficinas
- Video para el evento de Presentación
Introducción
Los Media Lab son espacios de creatividad, de creación de proyectos digitales, innovadores y colaborativos. Sin una definición concreta y cerrada, albergan alrededor de todo el mundo campos como el periodismo, diseño, arte digital, nuevas tecnologías o ingeniería.
MediaLab_ será un espacio formativo en el que los universitarios trabajarán en proyectos de diseño, comunicación y humanidades, a través del uso de tecnologías de la industria 4.0.
El diseño de la identidad utiliza un lenguaje visual que pretende ser un reclamo para que los jóvenes participen y colaboren en un entorno multidisciplinar. Utilizamos como metáfora visual la representación gráfica de los bits y los atoms, denominación de dos de los espacios fundamentales del MediaLab_
Hicimos especial énfasis en el uso de materiales responsables con el medio ambiente, como las telas orgánicas, papel piedra, etc
Recursos gráficos
Tomamos como referencia la representación gráfica de los bits y de los átomos para crear un código visual que pudiera mezclarse y crear soluciones infinitas.
Colores
_Naranja
PANTONE 152C / #E87200
LAB: 63.77; 36.92; 52.4
HLC: 55; 64; 64
CMYK: 0; 45; 74; 11
sRGB: 228; 126; 60
LRV*: Approx. 33
*Light Reflectance Value
_Verde
PANTONE 333C / #2ED9C3
LAB: 78.24; 47.35; 1.68
HLC: 182;78; 47
CMYK: 79; 0; 10; 15
sRGB: 45; 217; 195
LRV*: Aprox. 54
*Light Reflectance Value
_Negro
#000000
Tipografía logotipo
Reef Bold es una fuente con terminaciones redondeadas, un estilo cercano y amistoso que invita al acercamiento. Siguiendo la filosofía de recursos open source su licencia es gratuita y se puede descargar fácilmente desde infinidad de webs.
Reef Bold
Tipografía corporativa
PT Mono es una fuente de las denominadas monospace, el ancho de todos los caracteres es igual por lo que se utilizaba para configurar documentos complejos, para controlar anchos de tabla, etc nos recuerda el estilo de los antiguos documentos científicos.
Como recurso corporativo, se usará el guion bajo «_» al inicio de titulares o frases importantes, como referencia al guion del logotipo.
PT Mono
ABCDEFGHIJKLMNOPQRSTUVWXYZ
abcdefghijklmnñopqrstuvwxyz
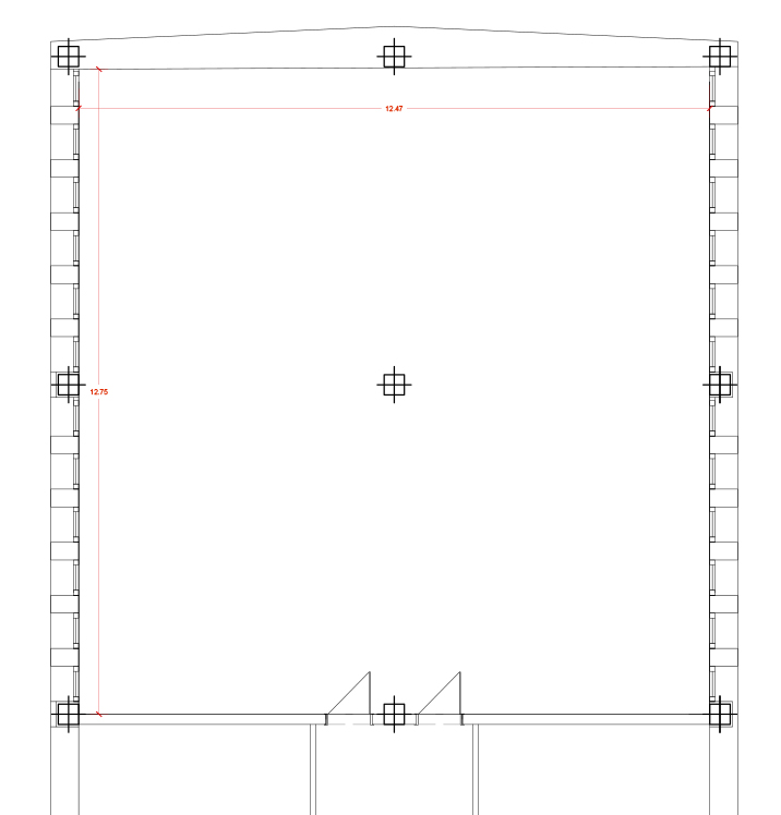
Dimensiones
- 12,47 m x 12,75 m
- Superficie útil total = 155 m²
- H libre = 2,50 m
Diseño de oficinas
”“La geometría como medio de aproximación al espacio es capaz de generar un orden intrínseco del proyecto.”
C. FerraterArquitecto
El espacio.
Espacio diáfano con un pilar central y dos puertas de acceso.
Programa Funcional
El programa funcional se estructura en bandas alrededor de la zona de recorridos según tres zonificaciones:
Amarillo: Bienvenida y espacios de uso público y común.
Rosa: Espacios de creación y diseño.
Azul: Zonas de reunión.
Zonificación
Zonificación según programa funcional:
Bienvenida y espacios de uso público y común:
1. Recepción y administración
2. Biblioteca
3. Espacio Audiovisual
Espacios de creación y diseño:
4. Formación (workshops)
5. Investigación (Miembros en residencia)
Laboratorios de producción digital y fabricación:
6. Zona de café. Punto de encuentro
7. Sala de reuniones
8. Almacenaje
Si te ha gustado este proyecto, tómate un segundo para compartirlo, gracias










